容器系列
  换热设备系列
  精馏塔系列
  反应釜系列
  制粒系列
  流化床系列
  气流干燥系列
  喷雾干燥系列
  真空、传导式干燥系列
  箱式干燥系列
  辅助设备、混合设备
   
 
  地 址:常州市雪堰镇工业集中
    区雪建路12号
  邮 编:213169
  电 话:0519-81190160
  传 真:0519-81190162
  邮 箱:market@taileike.com
  网 址:www.taileike.com
 
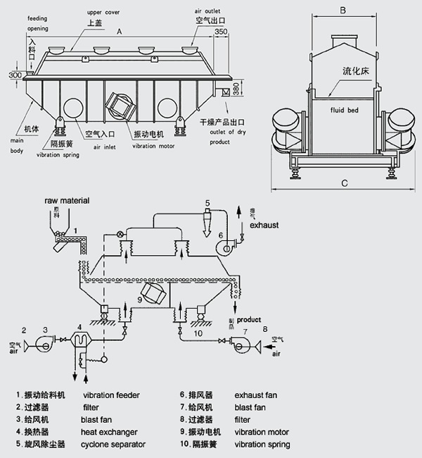
GZQ系列振动流化床干燥机

      

>>技术参数
型号 GZQ
床体
外形
振动电机功率(kw)
重量 (kg)
宽(W)
长(L)
A
B
C
3×30 300 3000 3505 450 1050 0.37×2 1240
3×45 300 4500 5005 450 1050 0.75×2 1570
6×45 600 4500 5005 750 1350 1.1×2 1967
6×60 600 6000 6510 750 1350 1.1×2 2743
6×75 600 7500 8010 750 1750 1.5×2 2886
9×60 900 6000 6510 1050 1750 1.5×2 3540
9×75 900 7500 8010 1050 1750 2.2×2 4219
12×75 1200 7500 8010 1400 2200 3×2 5223
15×75 1500 7500 8010 1700 2500 4×2 6426
18×80 1800 8000 8520 2000 2800 4×2 8600
 
江苏泰雷克石化装备制造有限公司(原常州泰雷克机械制造有限公司) 版权所有(C)2011 网络支持 中国化工网 全球化工网 生意宝